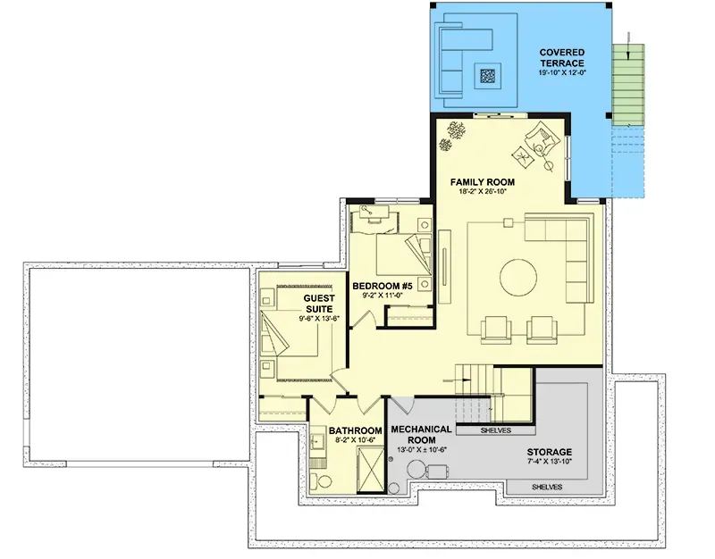
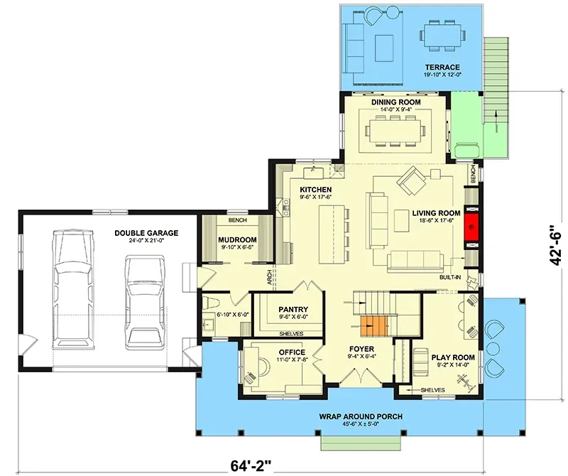
Farmhouse at Fayette
Two-Story Modern Farmhouse with Finished Lower Level - 3759 Sq Ft
OUR BUILD PROCESS
Feasibility
Here's where you meet the TurnKey Team! After a quick consultation and completing our intake form, we create a project feasibility study to give you a price range for your project.
Pre-Construction
After being retained, we work with your architect and your designer to create the project scope of work. Once the blueprints and designer selections are complete, we finalize the project cost. Following any necessary adjustments, we complete the construction agreement and scope of work, setting the stage for bringing your dream home to life with precision and care.
Build/Project Completion
Your build journey, guided by our expert Project Manager, begins with a focus on quality and transparency, using BuilderTrend for progress updates. Throughout the build, our team conducts thorough quality control inspections. Upon moving in, you'll receive a comprehensive Homeowner Manual and benefit from a 1-year warranty with scheduled touch-ups, ensuring lasting satisfaction in your new TurnKey Custom home.
















